CASE4 大きなぬれ縁のある家
外壁に3か所のBS耐力壁を配置するだけで、庭に面した大きな開口部が展開可能。室内から四季折々の景色をパノラマで楽しむことができるだけでなく、第2のリビングとなる広いぬれ縁を設けることで、庭まで一体となった豊かな空間が広がります。


- 1
- 大きな開口で明るく豊かな採光を実現。
- 2
- 南面の連続した開口部で四季を感じる風景を楽しむことができる。
- 3
- 庭と一体になった広いぬれ縁は第2のリビングに。

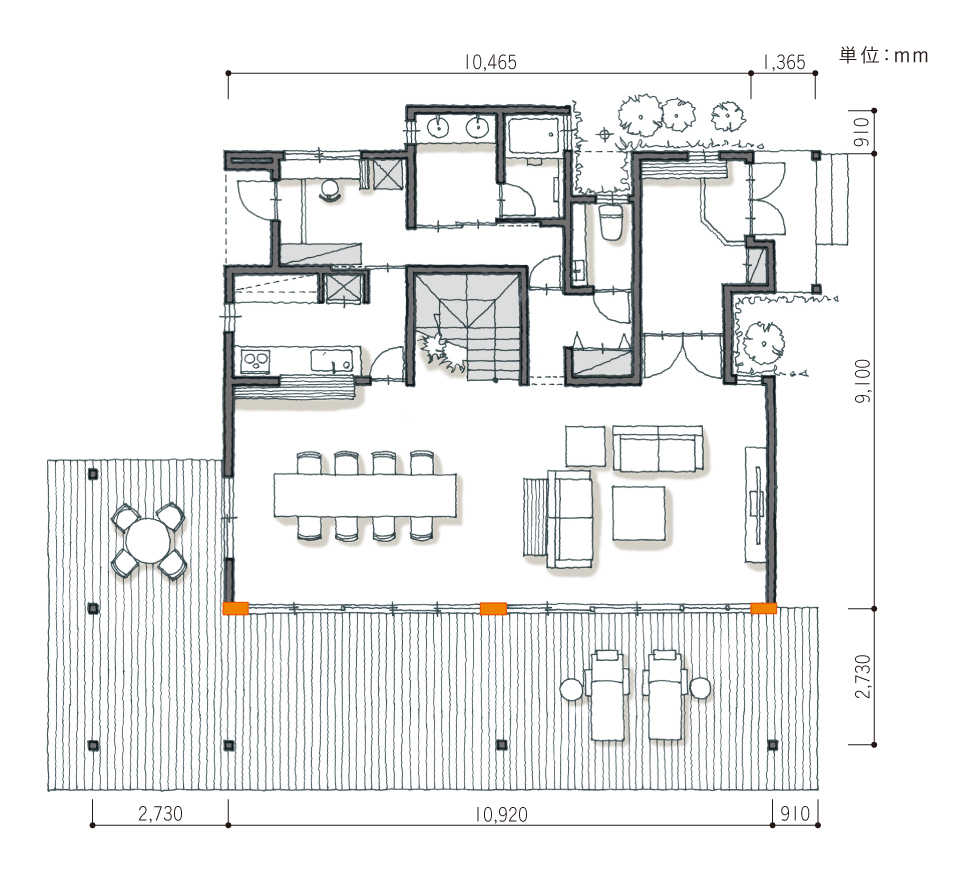
CASE4大きなぬれ縁のある家
外壁に3か所のBS耐力壁を配置するだけで、庭に面した大きな開口部が展開可能。室内から四季折々の景色をパノラマで楽しむことができるだけでなく、第2のリビングとなる広いぬれ縁を設けることで、庭まで一体となった豊かな空間が広がります。

- 1
- 大きな開口で明るく豊かな採光を実現。
- 2
- 南面の連続した開口部で四季を感じる風景を楽しむことができる。

- 3
- 庭と一体になった広いぬれ縁は第2のリビングに。
